中古一戸建て 岡崎市明大寺町字畔土
所在地
岡崎市明大寺町字畔土
3,980万円
31.73坪
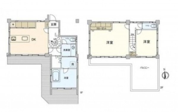
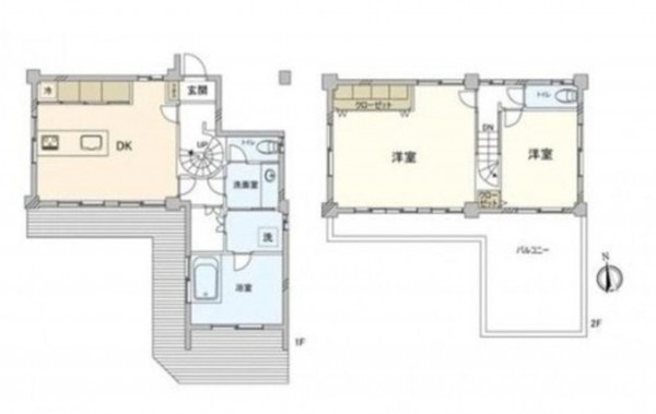
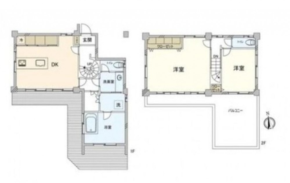
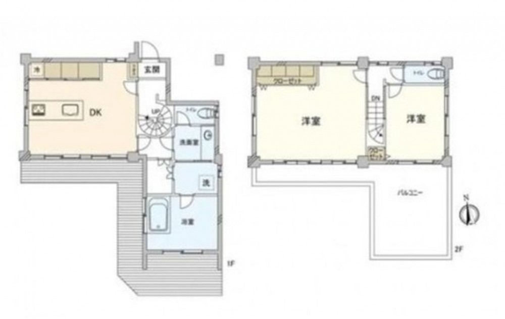
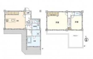
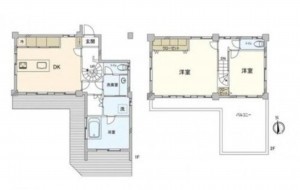
2LDK
◎⼈気エリアの「岡崎市明⼤寺町デザインナーズハウス」
◎中古⼾建てながら、室内フルリノベーションを施⼯し、新築同様の仕上がりになっています。
◎庭にはウッドデッキを設置しており、植栽な眺め癒される空間作り、バルコニーにもカフェ気分が満喫できる仕様とリゾートハウスに泊まっているかのような雰囲気が感じられます。
・所在地 / 愛知県岡崎市明⼤寺町字畔⼟
・間取り / 2LDK
・構造 / 鉄筋コンクリート2階建
・築年⽉ / 1976年3⽉
・建物⾯積 / 壁芯104.92㎡
・引渡⽇ / 即時
・接道 / ⼀⽅
・公道 幅員4m 北側 間⼝4m
・私道負担⾯積 / 無
月々の支払例
【※ボーナス払い無し】
【※ボーナス払い無し】
※碧海信用金庫/頭金0円、返済期間35年、金利0.900%変動金利変動金利(2026年04月)の場合
※金利は毎月見直されます。別途、融資手数料、その他諸費用がかかります。
※審査により金利は変わる可能性があります。
物件概要
- 交通
-
名鉄本線 東岡崎駅 まで 徒歩17分
- 接道状況
- 北側 公道4m 間口約4m
- 土地面積
- 公簿 175.20㎡ (52.99坪)
- 建物面積
- 104.92㎡ (31.73坪)
- 築年数
-
1976年
(昭和51)
3月
築50年 - 建ぺい率
- 60%
- 容積率
- 200%
- 土地権利
- 所有権
- 構造および階数
- RC(鉄筋コンクリート) 造 地上2階建
- 小学校区
- 三島 ( 891m )
- 中学校区
- 竜海 ( 915m )
- 私道負担
- 無
- 地目
- 宅地
- 現況
- 空
- 引渡時期
- 即時
- 駐車場
- 有
- 上水道
- 公共
- 下水道
- 公共
- ガス
- 都市ガス
- 都市計画
- 市街化区域
- 用途地域
- 1種住居
- 設備・条件
- システムキッチン、カウンターキッチン、トイレ2箇所
- 備考
-
・所在地 / 愛知県岡崎市明⼤寺町字畔⼟
・間取り / 2LDK
・構造 / 鉄筋コンクリート2階建
・築年⽉ / 1976年3⽉
・建物⾯積 / 壁芯104.92㎡
・引渡⽇ / 即時
・接道 / ⼀⽅
・公道 幅員4m 北側 間⼝4m
・私道負担⾯積 / 無 - 取引態様
- 仲介

