中古一戸建て 岡崎市六名2丁目
所在地
岡崎市六名2丁目
3,580万円
41.32坪
3LDK
◎車3台駐車可能!
◎一階は店舗としても使用可♪
・コムタウン:徒歩8分(600m)
・六名保育園:徒歩3分(250m)
月々の支払例
【※ボーナス払い無し】
【※ボーナス払い無し】
※碧海信用金庫/頭金0円、返済期間35年、金利0.900%変動金利変動金利(2026年04月)の場合
※金利は毎月見直されます。別途、融資手数料、その他諸費用がかかります。
※審査により金利は変わる可能性があります。
物件概要
- 交通
-
愛知環状線 六名駅 まで 徒歩13分
- 接道状況
- 西側 公道30m 間口約10.9m
- 土地面積
- 公簿 139.08㎡ (42.07坪)
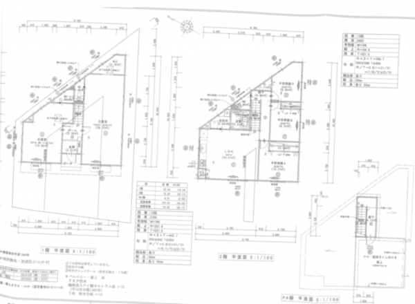
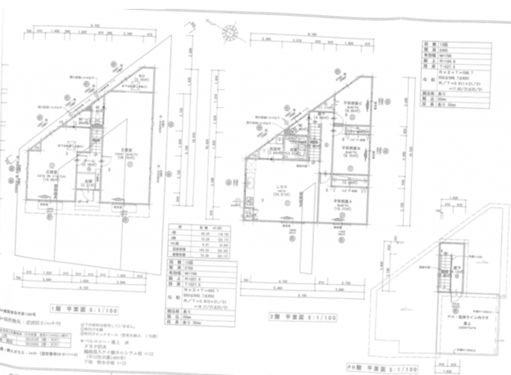
- 建物面積
- 136.62㎡ (41.32坪)
- 築年数
-
2007年
(平成19)
11月
築18年 - 建ぺい率
- 80%
- 容積率
- 200%
- 土地権利
- 所有権
- 構造および階数
- 木造 地上2階建
- 小学校区
- 六名 ( 450m )
- 中学校区
- 竜海 ( 1400m )
- 私道負担
- 無
- 地目
- 宅地
- 現況
- 居住中
- 引渡時期
- 相談
- 駐車場
- 上水道
- 公共
- 下水道
- 公共
- ガス
- プロパン個別
- 都市計画
- 市街化区域
- 用途地域
- 近隣商業
- 設備・条件
- 備考
-
バルコニー:あり
主要採光面:南西向き
建築確認完了検査済証あり
新築時・増改築時の設計図書あり
この物件は1階が現在テナント入居中です。
2階が居住用スペースとなっています。 - 取引態様
- 仲介

